Giljotina sistem
Nova generacija sistema
Bumerang - Giljotina sistem
U potrazi ste za modernim, elegantnim i funkcionalnim rješenjem za ostakljivanje terasa, balkona ili poslovnih prostora? Vertikalno klizni sistem Giljotina sistem predstavlja savršenu kombinaciju estetike, praktičnosti i visokih tehnoloških standarda. Ovaj napredni aluminijski sistem, razvijen prema ASISTAL standardima, pruža izvanredno iskustvo korištenja, bilo da želite unaprijediti svoj dom ili stvoriti prijatniji ambijent za svoje goste u ugostiteljskom objektu.
Giljotina sistem osmišljena je kao odgovor na savremene arhitektonske zahtjeve. To je čisti dizajn, maksimalna prozirnost i izuzetna funkcionalnost spojeni u jedan sofisticirani sistem koji izgleda jednako dobro kao što radi. Ovaj vertikalno klizni mehanizam omogućava lako upravljanje i vrhunsku udobnost, čineći ga idealnim izborom za restorane, ljetne terase, balkone, kafiće, zimske bašte i sve otvorene prostore koji zahtijevaju pouzdanu zaštitu, ali i atraktivnu estetiku.
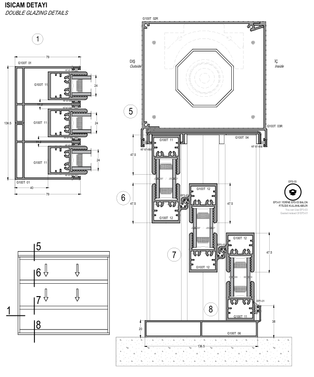
Tehničke karakteristike Giljotina sistema
Da bi ispunio sve zahtjeve modernog prostora, giljotina sistem dolazi sa precizno definisanim tehničkim parametrima:
- Giljotinski stakleni balkonski sistem
- Dubina ugradnje: 136.5 mm
- Debljina stakla: 8 mm (jednostruko staklo) ili 24 mm (stakleni paket)
Sistem je moguće konfigurirati na dva načina:
- Dvije pokretne + jedna fiksna sekcija, ili
- Jedna pokretna + jedna fiksna sekcija
Bez obzira koju varijantu izaberete, sistem donosi izvanrednu stabilnost, sigurnost i vizuelnu privlačnost.
Elegantan mehanizam koji osvaja na prvi pogled
Ono što giljotina sistem čini posebnim jeste njegov inovativni način otvaranja. Pokretne sekcije se spuštaju vertikalno prema dole, a prilikom otvaranja formira se prozirna staklena ograda. Ovaj efekat dodaje prostoru dozu luksuza i sigurnosti, a istovremeno omogućava nesmetan pogled na okolinu.
Sistem radi pomoću elektromotora sa lančanim prenosnikom, smještenog u gornjem dijelu konstrukcije. Upravljanje je izuzetno jednostavno, glatko, tiho i precizno otvaranje i zatvaranje osiguravaju maksimalnu udobnost i profesionalan izgled svakog puta kada pokrenete mehanizam.
Zašto odabrati giljotina sistem
ASISTAL giljotina sistem nije samo još jedno ostakljenje nego je premium rješenje za svakoga ko želi spojiti funkcionalnost i estetiku u savršen sklad.
Estetska jasnoća i moderni dizajn
Giljotina sistem je kreiran da se uklopi u najmodernije arhitektonske koncepte. Minimalistički aluminijski profili i čiste linije donose eleganciju i otvaraju prostor prirodnom svjetlu.
Funkcionalnost bez kompromisa
Uz mogućnost prilagođavanja debljine stakla – 8 mm za jednostruko i čak 24 mm za staklene pakete – sistem pruža izvanrednu stabilnost, zvučnu izolaciju i sigurnost.
Izolacija i udobnost tokom cijele godine
Bez obzira na godišnje doba, ovaj sistem omogućava stabilnu mikroklimu u vašem prostoru. Idealno za zimske bašte, restorane na otvorenom ili terase koje se koriste i zimi i ljeti.
Savršen za ugostiteljske objekte
Restorani, kafići i lounge barovi posebno cijene ovaj sistem zbog njegove sposobnosti da u trenutku otvara ili zatvara prostor, što je idealno za promjenjive vremenske uvjete.
Giljotina sistem je idealan za: ljetne terase i balkone, ugostiteljske objekte, zimske bašte, kafiće uz bazene, moderne poslovne prostore, sve objekte koji žele otvoren, ali zaštićen prostor
Savršeno rješenje za svaki moderan prostor
Giljotina sistem predstavlja spoj dizajna, kvaliteta, tehnologije i jednostavne upotrebe. Njegova sposobnost da obezbijedi izolaciju, sigurnost i maksimalnu prozirnost čini ga jednim od najnaprednijih sistema za vertikalno ostakljivanje danas dostupnih na tržištu.
Ako želite učiniti vaš prostor luksuznijim, udobnijim i funkcionalnijim, giljotina sistem je odgovor koji ste tražili.
Kontaktirajte Bumerang
Kontaktirajte stručni tim Bumerang kompanije već danas i dogovorite besplatnu konsultaciju ili ponudu. Naši stručnjaci pomoći će vam u odabiru najbolje opcije, mjerenju i profesionalnoj ugradnji sustava, osiguravajući da svaki detalj bude savršeno izveden.
Pozovite nas sada ili pošaljite upit putem web stranice i ostvarite svoju idealnu terasu s giljotina sistemom!


